Foto leveres af Google Street View og kan være upræcist:
Kontor til leje, Århus C,
, 8000 Århus C- Kontor til leje
- Ca. 15 m2
, 8000 Århus C
- Kontor til leje
- Ca. 15 m2
Få mere info
Du linkes til en anden portal, som evt. kan kræve betaling eller oprettelse
Kontor til leje, Århus C,
Kunst og kultur i den gamle tandlægeklinik
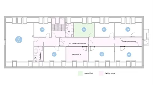
Du har nu muligheden for at leje et lokale i Kunsthus TESE – Et levende og inspirerende kunst- og kulturfællesskab i den gamle tandlægeklinik i Graven i Latinerkvarteret i Aarhus. Den gamle tandlægeklinik står stort set I sin oprindelige form, og man har ganske enkelt ladet kunsten flytte ind i klinikkens gamle rammer. I stueplan finder du Galleri TESE og caféen Kulturbodega Bellis, som begge er med til at åbne ejendommen op skabe et uformelt mødesked for både ejendommens kunstnere og besøgende. Lokalet ligger på 2. sal i ejendommen. Det har vinduer mod Graven og fremstår det lyst og indbydende.
Ud over selve lokalet er der adgang til fælles te-køkken på etagen, et fælles mødelokale på 2. sal samt fælles vaske- og baderum i kælderen. I Graven 21 indgår du i et kreativt fællesskab hvor hver lejer er særligt udvalgt af kurator og kulturdirektør Sarah Kamille Amininejad Koushki Teib, som også står for den overordnede ramme og retning for kunsthuset. Graven er en af Aarhus’ ældste gader, og tilmed en de mest populære og eftertragtede gader, når Aarhusianerne skal mødes og nyde en kaffe i solen. Både selve gaden og pladsen foran ejendommen har netop gennemgået en omfattende renovering, for at give plads til mere liv og ophold i gaden og for at skabe ekstra uderum for bylivet i Latinerkvarteret. Ønsker du at høre mere om Kunsthus TESE eller ønsker du at blive en del af fællesskabet kan du kontakte os på tlf. eller e-mail:
Ud over selve lokalet er der adgang til fælles te-køkken på etagen, et fælles mødelokale på 2. sal samt fælles vaske- og baderum i kælderen. I Graven 21 indgår du i et kreativt fællesskab hvor hver lejer er særligt udvalgt af kurator og kulturdirektør Sarah Kamille Amininejad Koushki Teib, som også står for den overordnede ramme og retning for kunsthuset. Graven er en af Aarhus’ ældste gader, og tilmed en de mest populære og eftertragtede gader, når Aarhusianerne skal mødes og nyde en kaffe i solen. Både selve gaden og pladsen foran ejendommen har netop gennemgået en omfattende renovering, for at give plads til mere liv og ophold i gaden og for at skabe ekstra uderum for bylivet i Latinerkvarteret. Ønsker du at høre mere om Kunsthus TESE eller ønsker du at blive en del af fællesskabet kan du kontakte os på tlf. eller e-mail:
Information og data
Dette kontorlokale ligger på Graven i Århus C. Århus C har postnummeret 8000, og ligger i kommunen Aarhus, som ligger i Århus. Lokalet er i alt 15 m2.
Markedsindsigt: Denne ejendom er identificeret via vores realtids-overvågning af ejendomsmarkedet. Vi samler udbuddet fra hele landet i dit dashboard – herunder muligheder, der ikke altid er synlige på traditionelle portaler. Reagér straks på friske data før konkurrenterne.