Foto leveres af Google Street View og kan være upræcist:
Kontor til leje, Århus N, Jens Baggesens Vej 90A
Jens Baggesens Vej 90A, 8200 Århus N- Kontor til leje
- 360 m2
Jens Baggesens Vej 90A, 8200 Århus N
- Kontor til leje
- 360 m2
Få mere info
Du linkes til en anden portal, som evt. kan kræve betaling eller oprettelse
Kontor til leje, Århus N, Jens Baggesens Vej 90A
Ringgade CentretJens Baggesens Vej 88-90A m.fl, Aarhus
Byggeselskab Mogens de Linde kan nu præsentere et charmerende og højloftet kontorlejemål i Ringgade Centret beliggende på Jens Baggesens Vej, Aarhus N. Ringgade Centret er en samling af bygninger som tidligere har fungeret som produktionshal og administration for de Forenede Mejerier i årene 1955-1958. I dag produceres der ikke længere mælk på adressen, men bygningerne danner i stedet hjemsted for en lang række andre typer af erhverv, såsom kiropraktisk klinik, speciallægepraksis, fitness samt andre liberale erhverv.
Området
Ringgade Centret er særdeles centralt placeret ved Aarhus’ mest befærdede færdselsåre, Vestre Ringgade, som udgør en del af det centrale indre ringgadesystem omkring Aarhus bymidte. Mere end 30.000 biler passerer dagligt Ringgade Centret. Ejendommen er beliggende i et erhvervs- og kulturelt orienteret byområde, der rummer erhvervsvirksomheder, Storcenter Nord, Aarhus Universitet, Handelshøjskolen og Forskerparken foruden privat beboelse. Parkeringspladser kan tillejes lejemålet, alle med adgang fra Jens Baggesens Vej og Hangøvej. Fra lejemålet er der kort afstand til bymidten og let adgang til alle udfaldsvejene samt motorveje, ligesom der er bybusforbindelser og letbane indenfor gåafstand.
Ejendommen
Ringgade Centret er opført som fem forskellige bygningsafsnit, der alle er placeret i facadelinjen mod Ringgaden. I arkitektonisk henseende fremtræder de som en harmonisk helhed med ens facadefarve. Bygningerne er opmuret i gode danske teglsten, ligesom byggeriet i øvrigt er udført under anvendelse af sunde, naturlige materialer. Parkeringsarealer er placeret langs bygningernes anden facade mod Jens Baggesens Vej, hvor der i øjeblikket opføres en spritny parkeringskælder samt boliglejemål.
Lejemålet
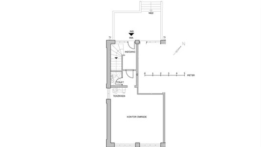
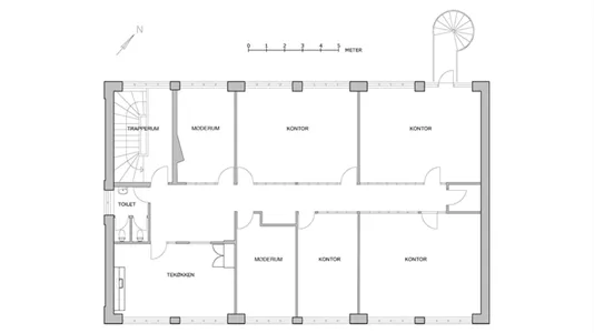
Med præsentabelt indgangsparti bydes ny lejer velkommen i det 360 m² højloftede kontorlejemål, hvor bl.a. et gammelt charmerende vindue og genbrugstømmer er med til at pryde omgivelserne. Lejemålet er inddelt i to etager, henholdsvis 73 m² og 287 m² på øverste plan. Indvendigt byder lejemålet på flere kontorer i forskellige størrelser, møderum, tekøkken samt toiletfaciliteter. Fælles for alle er massive egetrægulve, en fantastisk lofthøjde og store vinduespartier som sikrer et naturligt lysindfald.
Lejemålet overtages nyistandsat efter nærmere aftale.
Et hypermoderne mejerikompleks
Jens Baggesens Vej ligger i den sydlige ende af Christiansbjerg – et navn, som området officielt har haft siden slutningen af 1800-tallet. I starten af 1900-tallet begynder Aarhus at vokse, og byen breder sig ud mod de omkringliggende forstæder. Flere boligkvarterer rundt om den gamle by skyder frem, ligesom erhverv og industri finder vej til det nye kvarter. I 1920’erne og 1930’erne anlægges Ringgaden – den skal både forbinde byens ydre dele med hinanden og lede landevejstrafikken uden om byen, men det gør det også attraktivt og praktisk at drive virksomhed i nærheden.
I området omkring Jens Baggesens Vej spirer der gennem årene meget forskellig industri op. I slutningen af 1950’erne flytter Tage Vanggaard sin blomstrende kjoleproduktion fra Jægergårdsgade til en nyopført fabrik på hjørnet af Vestre Ringgade og Paludan Müllers Vej. Her vokser produktionen, så han i 1970’erne kan kalde sig indehaver af Danmarks største kjolefabrik. Også pålægsfabrikken Defco, der gennem årtier har leveret rullepølse, roastbeef og andet kødpålæg til madpakker og frokostborde, holder til i området – nærmere bestemt på Helsingforsgade.
Sidst, men ikke mindst opførte de Forenede Mejerier i årene 1955-1958 et kæmpe mejeri som forsynede både aarhusianerne og de amerikanske tropper i Vesttyskland med mælk. Den store produktionshal og administrationsbygningen ligger der stadig og danner Ringgade Centret. Når man træner i det store fitnesscenter – som nu ligger i den forhenværende produktionshal – står man faktisk midt i et stykke aarhusiansk mejerihistorie. I dag er samtlige bygninger udlejet til forskellige typer af erhverv.
Området
Ringgade Centret er særdeles centralt placeret ved Aarhus’ mest befærdede færdselsåre, Vestre Ringgade, som udgør en del af det centrale indre ringgadesystem omkring Aarhus bymidte. Mere end 30.000 biler passerer dagligt Ringgade Centret. Ejendommen er beliggende i et erhvervs- og kulturelt orienteret byområde, der rummer erhvervsvirksomheder, Storcenter Nord, Aarhus Universitet, Handelshøjskolen og Forskerparken foruden privat beboelse. Parkeringspladser kan tillejes lejemålet, alle med adgang fra Jens Baggesens Vej og Hangøvej. Fra lejemålet er der kort afstand til bymidten og let adgang til alle udfaldsvejene samt motorveje, ligesom der er bybusforbindelser og letbane indenfor gåafstand.
Ejendommen
Ringgade Centret er opført som fem forskellige bygningsafsnit, der alle er placeret i facadelinjen mod Ringgaden. I arkitektonisk henseende fremtræder de som en harmonisk helhed med ens facadefarve. Bygningerne er opmuret i gode danske teglsten, ligesom byggeriet i øvrigt er udført under anvendelse af sunde, naturlige materialer. Parkeringsarealer er placeret langs bygningernes anden facade mod Jens Baggesens Vej, hvor der i øjeblikket opføres en spritny parkeringskælder samt boliglejemål.
Lejemålet
Med præsentabelt indgangsparti bydes ny lejer velkommen i det 360 m² højloftede kontorlejemål, hvor bl.a. et gammelt charmerende vindue og genbrugstømmer er med til at pryde omgivelserne. Lejemålet er inddelt i to etager, henholdsvis 73 m² og 287 m² på øverste plan. Indvendigt byder lejemålet på flere kontorer i forskellige størrelser, møderum, tekøkken samt toiletfaciliteter. Fælles for alle er massive egetrægulve, en fantastisk lofthøjde og store vinduespartier som sikrer et naturligt lysindfald.
Lejemålet overtages nyistandsat efter nærmere aftale.
Et hypermoderne mejerikompleks
Jens Baggesens Vej ligger i den sydlige ende af Christiansbjerg – et navn, som området officielt har haft siden slutningen af 1800-tallet. I starten af 1900-tallet begynder Aarhus at vokse, og byen breder sig ud mod de omkringliggende forstæder. Flere boligkvarterer rundt om den gamle by skyder frem, ligesom erhverv og industri finder vej til det nye kvarter. I 1920’erne og 1930’erne anlægges Ringgaden – den skal både forbinde byens ydre dele med hinanden og lede landevejstrafikken uden om byen, men det gør det også attraktivt og praktisk at drive virksomhed i nærheden.
I området omkring Jens Baggesens Vej spirer der gennem årene meget forskellig industri op. I slutningen af 1950’erne flytter Tage Vanggaard sin blomstrende kjoleproduktion fra Jægergårdsgade til en nyopført fabrik på hjørnet af Vestre Ringgade og Paludan Müllers Vej. Her vokser produktionen, så han i 1970’erne kan kalde sig indehaver af Danmarks største kjolefabrik. Også pålægsfabrikken Defco, der gennem årtier har leveret rullepølse, roastbeef og andet kødpålæg til madpakker og frokostborde, holder til i området – nærmere bestemt på Helsingforsgade.
Sidst, men ikke mindst opførte de Forenede Mejerier i årene 1955-1958 et kæmpe mejeri som forsynede både aarhusianerne og de amerikanske tropper i Vesttyskland med mælk. Den store produktionshal og administrationsbygningen ligger der stadig og danner Ringgade Centret. Når man træner i det store fitnesscenter – som nu ligger i den forhenværende produktionshal – står man faktisk midt i et stykke aarhusiansk mejerihistorie. I dag er samtlige bygninger udlejet til forskellige typer af erhverv.
Information og data
Dette kontorlokale, som også kan anvendes til Klinik ligger på Jens Baggesens Vej i Århus N. Århus N har postnummeret 8200, og ligger i kommunen Aarhus, som ligger i Århus. Lokalet er i alt 360 m2.