Foto leveres af Google Street View og kan være upræcist:
Kontor til leje, København NV, Rentemestervej 23A
Rentemestervej 23A, 2400 København NV- Kontor til leje
- 10 - 36 m2
- 12.978 kr. per måned
Rentemestervej 23A, 2400 København NV
- Kontor til leje
- 10 - 36 m2
- 12.978 kr. per måned
Kontakt udlejeren nu
Du linkes til en anden portal, som evt. kan kræve betaling eller oprettelse
Kontor til leje, København NV, Rentemestervej 23A
Fakta
- 234877
- Kontor
- Kontorfællesskab
- 1 - 20
- Ja
- 10 - 36 m2
- 43.260 kr.
- 3.605 kr.
- 4.326 kr.
KONTAKT UDLEJEREN NU
Du linkes til en anden portal, som evt. kan kræve betaling eller oprettelse
Kontorer på varierende størrelser fra 15 til 36 m2
Kontorer på varierende størrelser fra 15 til 36 m2.
Adgang til fælleskøkken og spiseplads, badeværelse samt 3 toiletter.
Her er muligheden for enten at leje et enkelt aflukket kontor eller tage flere rum til en større virksomhed.
Lejen inkluderer fri afbenyttelse af alle fællesfaciliteter såsom 1000 mbit fibernet, køkken med hvidevarer, toiletter og fællesområder.
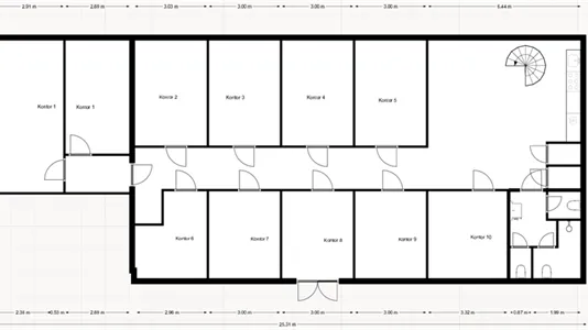
Priser på lokalerne som kan ses på plantegningen:
Kontor 2, 3, 4, 5, 6, 7, 9 og 10: kr. 3605 pr. md. + moms
PT. er lokale 1, 3 og 5 ledige
Lokale 1 ca. 36 m2 netto koster kr. 8.500 + moms pr. md. (her kan man leje et ekstra depotrum på ca. 9 m2 til kr. 1.500 + moms ekstra)
Lokale 3 og 5 koster ca. 15 m2 netto kr. 3605 pr md. + moms. per stk.
Adgang til fælleskøkken og spiseplads, badeværelse samt 3 toiletter.
Her er muligheden for enten at leje et enkelt aflukket kontor eller tage flere rum til en større virksomhed.
Lejen inkluderer fri afbenyttelse af alle fællesfaciliteter såsom 1000 mbit fibernet, køkken med hvidevarer, toiletter og fællesområder.
Priser på lokalerne som kan ses på plantegningen:
Kontor 2, 3, 4, 5, 6, 7, 9 og 10: kr. 3605 pr. md. + moms
PT. er lokale 1, 3 og 5 ledige
Lokale 1 ca. 36 m2 netto koster kr. 8.500 + moms pr. md. (her kan man leje et ekstra depotrum på ca. 9 m2 til kr. 1.500 + moms ekstra)
Lokale 3 og 5 koster ca. 15 m2 netto kr. 3605 pr md. + moms. per stk.
Services:
Bredbånd, Eget firmaskilt ved hoveddør, Køkken/frokoststue
Information og data
Dette kontorlokale, som også kan anvendes til Kontorfællesskab ligger på Rentemestervej i København NV. København NV har postnummeret 2400, og ligger i kommunen København, som ligger i København. Lokalet er i alt 36 m2. Lejepris: 155.736 kr. per år.