Foto leveres af Google Street View og kan være upræcist:

Kontor til leje, København S, Strandlodsvej 30

Strandlodsvej 30, 2300 København S
  • Kontor til leje
  • 1.474 m2
Kontor til leje, København S, Strandlodsvej 30
Strandlodsvej 30, 2300 København S
  • Kontor til leje
  • 1.474 m2
Få mere info
Du linkes til en anden portal, som evt. kan kræve betaling eller oprettelse

Kontor til leje, København S, Strandlodsvej 30

Byggeselskab Mogens de Linde
Lisa de Linde
tlf: 26 77 11 22
Se email-adressexxxxxxxxxxxxxxxx

PRO-UDLEJER

Læs mere

Læs om udlejer

Fakta

  • 317394
  • Kontor
  • 1.474 m2
  • Ikke angivet
  • 1.200 kr.

Strandlodsvej 30, 2300 København S

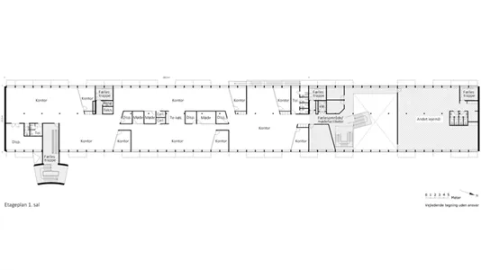
1. salen på Strandlodsvej 30 udbydes til leje. Lejemålet på i alt 1.474 m² er lyst og fleksibelt indrettet. Hvis ønsket kan lejemålet udvides med yderligere 300 m². Ejendommen har fælles kantine, mødelokaler og parkeringspladser og ligger i et blomstrende kvarter på Amagerbro tæt på grønne byrum, caféer og strand. Lejemålet henvender sig til virksomheder, der ønsker en central placering med nem adgang til Indre By, Københavns Lufthavn og motorvejen.

Området

Nærmiljøet byder på en blanding af moderne boliger, kontorer og lokale caféer. De grønne byrum som Amager Strandpark og Kløvermarken giver gode rammer for en Walk 'n Talk. Mulighederne for motion og sportsaktiviteter inden eller efter arbejde er ganske fordelagtige med flere nærliggende fitnesscentre og padelbaner i naboejendommen. Den offentlige transport er ligeledes i top, med både Øresund Metrostation og Lergravsparken Metrostation inden for kort gåafstand. Herfra er der hurtig forbindelse til Indre By, Cityringen og Københavns Lufthavn, og flere buslinjer betjener området. Via supercykelstien er der kun 3 km til Kongens Nytorv, og for dem, der ankommer i bil, kan parkeringsplads på lejemålets område tillejes.

Ejendommen

Bygningen er opført i 1958 og har gennem årene været en vigtig del af områdets erhvervskarakter - og er det fortsat i dag, hvor stueetagen af ejendommen danner ramme om Viapalys danske hovedkontor. Nabobygningen på Jenagade 22 har huseret store produktionsselskaber som Metronome og Studios, mens Viasat/Allente fortsat bidrager til medie- og studieproduktionen i området. Ejendommen fremstår velholdt og tilbyder en række attraktive fællesfaciliteter, der skaber komfort og fleksibilitet for lejerne, herunder en kantine i stueetagen og fem mødelokaler med AV-udstyr til interne møder og kundearrangementer.

Lejemålet

Lejemålet på 1.474 m² er gennemlyst fra to sider, hvilket giver gode muligheder for en effektiv og fleksibel indretning med arbejdspladser langs begge facader. Planløsningen kombinerer åbne kontorområder med mødelokaler, så arealet kan opdeles i funktionelle arbejdszoner. Lejemålet istandsættes inden overtagelse og vil blandt andet blive opgraderet med ny LED-belysning integreret i loftsplader samt en ny gulvløsning, som lejer selv kan have indflydelse på.

Fra landbrug og råt fabriksland til moderne byliv

Strandlodsvej på det østlige Amager i København fortæller historien om et område i konstant forandring. Gaden har sit navn efter de såkaldte strandlodder - små jordlodder, som bønder og husmænd i Sundbyøster havde i området ned mod stranden i 1700- og 1800-tallet. Lodderne blev anvendt til græsning og indsamling af tang. Sideløbende lå her også en hørplantage, hvor hør blev dyrket og leveret til væverierne ved Søkvæsthuset og i Dragør. Dette vidner om en tid, hvor området var præget af landbrug og lokalt erhverv.

Med industrialiseringen ændrede området karakter. Fra slutningen af 1800-tallet og frem mod tiden omkring 1. verdenskrig tog udviklingen fart. De tidligere små lodsejendomme blev omdannet til et tæt industriområde, hvor fabrikker skød op side om side. Blandt de kendte aktører var Philips' fabrik, Brdr. Henze's skruebolte- og møtrikfabrik samt Toms Chokoladefabrik. Industrien og produktionen prægede hverdagen, og området fik en stærk erhvervsprofil, som satte sit præg på kvarterets identitet i næsten et århundrede. Omkring midten af 1990'erne begyndte industrien at trække sig tilbage, og nye typer erhverv fandt vej til området. Medieproduktion og kreative brancher fik en stadig mere fremtrædende rolle, og Strandlodsvej udviklede sig gradvist til et centrum for moderne erhverv - stadig med produktion som fundament, men nu i en ny form.

I dag har området omkring Strandlodsvej udviklet sig fra landbrugsjord og råt fabriksland til et attraktivt knudepunkt for både virksomheder og beboere. Her er en naturlig balance mellem byliv, kontorer, nyere boligbyggeri, caféer og grønne omgivelser, hvor Amager Strandpark og Kløvermarken ligger få minutter væk og bruges aktivt i hverdagen.

Ejendommen på Strandlodsvej 30 er en del af denne udvikling. Opført i 1958, har bygningen gennem årene været en vigtig del af områdets erhvervskarakter - og er det fortsat i dag, hvor den danner ramme om Viaplays danske hovedkontor. I nabobygningen på Jenagade 22, som Byggeselskab Mogens de Linde ligeledes ejer, har store produktionsselskaber som Metronome og Studios haft base, mens Viasat/Allente fortsat er en aktiv del af medie-og studieproduktionen i området.

Information og data

Dette kontorlokale ligger på Strandlodsvej i København S. København S har postnummeret 2300, og ligger i kommunen København, som ligger i København. Lokalet er i alt 1.474 m2.