Foto leveres af Google Street View og kan være upræcist:
Kontor til leje, Kolding, Vonsildvej 1 1E
Vonsildvej 1 1E, 6000 Kolding- Kontor til leje
- Ca. 860 m2
- Ca. 78.500 kr. per måned
Vonsildvej 1 1E, 6000 Kolding
- Kontor til leje
- Ca. 860 m2
- Ca. 78.500 kr. per måned
Få mere info
Du linkes til en anden portal, som evt. kan kræve betaling eller oprettelse
Kontor til leje, Kolding, Vonsildvej 1 1E
Fakta
- 312322
- Kontor
- Klinik
- Ca. 860 m2
- Ca. 945.000 kr.
- Ca. 78.500 kr.
- Ca. 1.000 kr.
Lokaler til kontor/fitness/klinik
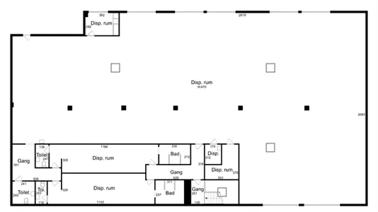
Disse lokaler på Vonsildvej 1E er indrettet på ejendommens 1. sal, som strækker sig henover boksbutikker i stueetagen.
Lokalerne har tidligere været anvendt til fitness og er derfor udformet som et større, åbent lokale med tilhørende omklædning, toilet og badefaciliteter.
Der er store vinduespartier mod syd, hvilket skaber et flot lysindfald.
Lejemålet rummer flere forskellige indretnings- og anvendelsesmuligheder.
Energiklasse A2015.
Etageareal i alt: 859 m²
Beliggenhed ved hovedindfaldsvej
Attraktivt område med gode lejere.
Gode parkeringsforhold
Mulighed for opdeling
Fleksible indretnings- og anvendelsesmuligheder
Årlig leje: 1.100 kr. pr. m² ekskl. drift
Lokalerne har tidligere været anvendt til fitness og er derfor udformet som et større, åbent lokale med tilhørende omklædning, toilet og badefaciliteter.
Der er store vinduespartier mod syd, hvilket skaber et flot lysindfald.
Lejemålet rummer flere forskellige indretnings- og anvendelsesmuligheder.
Energiklasse A2015.
Etageareal i alt: 859 m²
Beliggenhed ved hovedindfaldsvej
Attraktivt område med gode lejere.
Gode parkeringsforhold
Mulighed for opdeling
Fleksible indretnings- og anvendelsesmuligheder
Årlig leje: 1.100 kr. pr. m² ekskl. drift
Information og data
Dette kontorlokale, som også kan anvendes til Klinik ligger på Vonsildvej 1 i Kolding. Kolding har postnummeret 6000, og ligger i kommunen Kolding, som ligger i Region Sydjylland. Lokalet er i alt 859 m2. Lejepris: Ca. 945.000 kr. per år.