Foto leveres af Google Street View og kan være upræcist:
    
Lager & Kontor til leje, Haderslev, Finlandsvej 12A
Finlandsvej 12A, 6100 Haderslev- Lager til leje
 - 4.047 m2
 - 111.010 kr. per måned
 
            
                Finlandsvej 12A, 6100 Haderslev
                
            - Lager til leje
 - 4.047 m2
 - 111.010 kr. per måned
 
            Kontakt udlejeren nu
            Du linkes til en anden portal, som evt. kan kræve betaling eller oprettelse
Lager & Kontor til leje, Haderslev, Finlandsvej 12A
Fakta
- 282227
 - Lager
 - Kontor
 - 4.047 m2
 - 1.332.125 kr.
 - 111.010 kr.
 - 325 kr.
 
                    KONTAKT UDLEJEREN NU
                    
            
        Du linkes til en anden portal, som evt. kan kræve betaling eller oprettelse
                Lager & kontor til leje i 6100 Haderslev
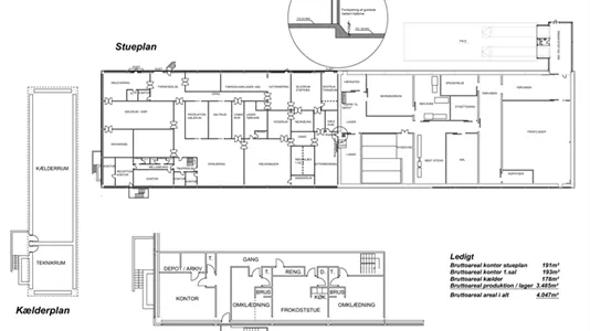
            Velindrettet fødevareproduktionsejendom med større frostlager udlejes i Haderslev. Tidligere produktionsfaciliteter for Hanegal-velegnet til fødevareindustri. Denne velindrettede erhvervsejendom er ideel til virksomheder inden for fødevareproduktion. Ejendommen har i mange år huset produktionen af Hanegals økologiske sortiment og er derfor udstyret med de nødvendige faciliteter til fødevareforarbejdning. Her er produktionsfaciliteter med bl.a. køle - og fryselager, røgovne, modningsrum mm. Bygningen er opført som en jernbetonkonstruktion med loftshøjde ca. 6,5 meter. Facaderne er med stålprofilplader i sort/grå som beklædning, hvide aluvinduer. Ejendommen fremstår præsentabel udefra. Bygningen er delvist moderniseret og fremstår med glatte lofter og opdaterede installationer i den nyeste del og en lidt ældre del af ejendommen, som let kan opdateres. Indrettet med flot indgangsparti i stål og glas, der giver adgang til 1. sal og stueplan. Begge etager anvendes til administration -kontor, møde - og personalerum med antine og køkken samt omklædningsrum mm. De øvrige rum i stueplan er indrettet til kødproduktion, hvoraf de fleste tilvirkningsrum har køl eller posekøl, lagerrum med køl og røgerum samt varemodtagelses rum med portadgang fra ejendommens nordlige side. Den resterende del af bygningen er et stort højloftet lagerrum med anvendelse til såvel almindelig lagerkapacitet som frysekapacitet. Loftshøjden er god, således at der er mulighed for at have reoler med 4 niveauer. I fortsættelse af det regulære lagerrum er der via tilbygning, et rum med 2 sluseporte med rampeadgang. Desuden indlagt stor strømkapacitet i bygningen. Dette er en oplagt mulighed for virksomheder, der søger funktionelle produktionsfaciliteter til fødevarer eller lignende erhverv, med en særdeles attraktiv beliggenhed.